Barramundi Beach House

Nightly rates from
$322

Book direct
Instant confirmation
Low online price
Secure credit card payment


Email
infopihh.com.au
Phone

(03) 9443 7538


Address

43 Barramundi Avenue
Smiths Beach
Victoria


Maps

Melway: map 733 ref B9
VicRoads Country: map 717 ref S11

View map

Barramundi Beach House, Smiths Beach
Phillip Island Holiday Homes

Barramundi Beach House is light and airy family holiday home, conveniently located within a short walk of the beach.

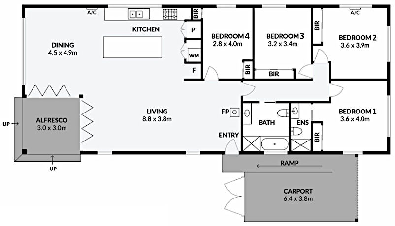
At the heart of this home is a large open plan living area with reverse-cycle air-conditioning for year round comfort. The sitting area includes a wall-mounted 65 inch Smart TV, comfortable couches and a cosy wood heater. The dining area has an 8 seat dining table, a retro 24 inch arcade game machine with 9,800 games, and a selection of board and card games. The kitchen is fully equipped with an electric cooktop, oven, microwave, coffee pod machine, dishwasher, fridge and ample cooking utensils, crockery and cutlery.

Barramundi Beach House has 4 bedrooms and can sleep up to 10 people.

  • Master bedroom - king bed, ensuite, wall-mounted 55 inch Smart TV
  • Bedroom 2 - two sets of single bunk beds, air-conditioner
  • Bedroom 3 - queen bed
  • Bedroom 4 - queen bed

There are 2 bathrooms.

  • Main bathroom - bath, shower, vanity unit, toilet
  • Ensuite - shower, vanity unit, toilet

A European laundry is located in the kitchen, equipped with a washing machine and clothes dryer.

From the living area at the rear of the home, a corner wall of stacker glass doors opens onto a covered outdoor entertaining area, complete with a large dining table that seats 8 people. This table can be converted into a table tennis table or mini pool table. The entertaining area overlooks an established landscaped fenced back garden with a large expanse of lawn and an outdoor shower.

The front garden is fenced, with gates opening onto a driveway that leads to a single carport. There is space for up to 3 vehicles, including a boat, on the driveway.

Take a 3 minute stroll around the corner from this home to the local general store and cafe. Walk a further 5 minutes and you will be on the sands of the pristine beach.

A 7 minute drive will take you into the heart of Cowes with its extensive selection of shops, restaurants and cafes. Phillip Island Grand Prix Circuit is a 3 minute drive away.

Please note that this property is not suitable for celebrations, parties or large events. No bookings are taken over Schoolies.


Property features

Entire property sleeps up to 10 people
Dogs allowed - view details
Laundry facilities
Wi-Fi internet


Nightly rates from

$322

Rates vary depending on length of stay and time of year.

Minimum stay is from 1 to 7 nights (please note this varies depending on the dates).

Top and bottom sheets, bath towels and pillowcases are not supplied by default for this property. If you would like these items of linen supplied rather than bringing your own, the cost is a once-off charge of $30 per bed. Please advise if you would like linen supplied and for which beds. Advance notice of at least 7 days prior to your arrival is appreciated. Note that doonas (quilts) with covers, pillows without covers, tea towels, hand towels and bathmats are supplied at no cost.

Please enquire so we can supply a quote for your specific dates.

★ 10% discount on all stays

Valid for stays until 31st January 2026
Make Phillip Island your summer escape destination this festive season with a 10% discount on your stay. Use promo code of "SAVE10" if booking online. Discount cannot be used in conjunction with any other special offers.


Inside

Barramundi Beach House - Inside

Outside

Barramundi Beach House - Outside

Floor plan

Barramundi Beach House - Floor plan
Advertisement statistics