Island Surf & Sun

Nightly rates from
$314

Book direct
Instant confirmation
Low online price
Secure credit card payment


Email
infopihh.com.au
Phone

(03) 9443 7538


Address

5 Fern Avenue
Surf Beach
Victoria


Maps

Melway: map 733 ref G10
VicRoads Country: map 716 ref C10

View map

Island Surf & Sun, Surf Beach
Phillip Island Holiday Homes

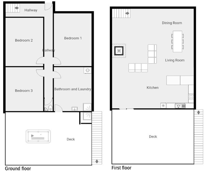
Island Surf & Sun is a two storey family holiday home located just a short walk from the beach.

The living area of this home is upstairs, accessible by both internal and external stairs. This open plan space has a wood heater (some wood provided to get you started) and reverse-cycle air-conditioner, providing year round comfort. There is a lounge suite, 40 inch TV, DVD player with movie library, Bluetooth speakers, a reading nook at the top of the staircase and a dining table that seats 8 people. The kitchen is fully appointed with an electric cooktop and oven, microwave, Aldi pod coffee machine, fridge, dishwasher and ample cookware, crockery and cutlery.

From the upstairs living area, glass doors open onto a huge fully covered entertaining deck. There is a gas BBQ, 8 seat dining table, an outdoor couch and extra chairs.

Downstairs are the bedrooms and bathroom.

Island Surf & Sun has 3 bedrooms and can sleep up to 8 people.

  • Bedroom 1 (downstairs) - queen bed
  • Bedroom 2 (downstairs) - queen bed, electric blanket
  • Bedroom 3 (downstairs) - queen bed, one set of single bunk beds, TV, DVD player, Sony PlayStation 3 with games

A cot and high chair are available if required.

There is 1 bathroom.

  • Combined bathroom / laundry - shower, vanity unit, washing machine, separate toilet

At the back of the home is a covered ground level deck which has a pool table and hot outdoor shower. This overlooks a neat and fenced back yard with an extensive area of lawn and a fire pit (some wood provided).

Up to 6 vehicles, including a boat, can be parked on the property.

Walk just a couple of minutes to the end of the street and across vegetated sand dunes to the stunning surf beach. A 9 minute drive will take you into either the heart of Cowes or San Remo for extensive dining options. The Phillip Island Grand Prix Circuit is only a 6 minute drive away.

Please note that this property is not suitable for celebrations, parties or large events. No bookings are taken over Schoolies.


Property features

Entire property sleeps up to 8 people
BBQ facilities
Dogs allowed - view details
Laundry facilities
Wi-Fi internet


Nightly rates from

$314

Rates vary depending on length of stay and time of year.

Minimum stay is from 2 to 7 nights (please note this varies depending on the dates).

Top and bottom sheets, bath towels and pillowcases are not supplied by default for this property. If you would like these items of linen supplied rather than bringing your own, the cost is a once-off charge of $30 per bed. Please advise if you would like linen supplied and for which beds. Advance notice of at least 7 days prior to your arrival is appreciated. Note that doonas (quilts) with covers, pillows without covers, tea towels, hand towels and bathmats are supplied at no cost.

Please enquire so we can supply a quote for your specific dates.


Upstairs

Island Surf & Sun - Upstairs

Downstairs

Island Surf & Sun - Downstairs

Outside

Island Surf & Sun - Outside

Floor plan

Island Surf & Sun - Floor plan
Advertisement statistics